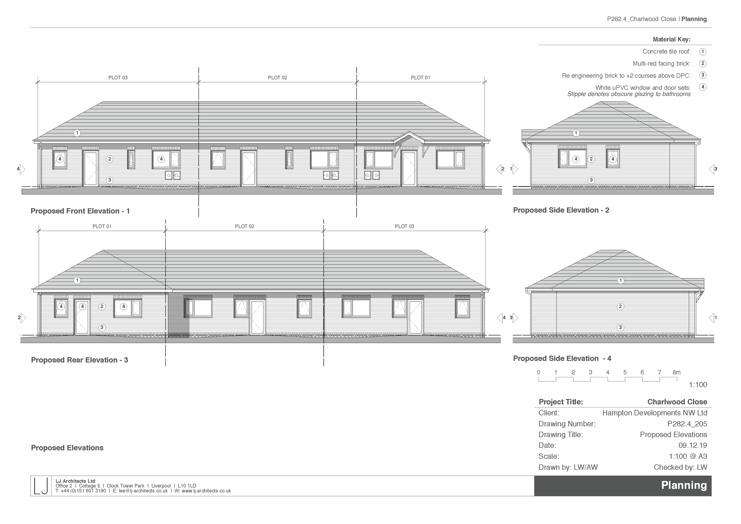
Third Avenue
In partnership with Onward Homes, we are bringing an array of brand new 2 bedroom bungalows to Third Avenue.
Located in Prenton, Birkenhead and spanning across five adjacent closes, these new homes will bring the neighbourhood closer together, creating a close knit community feeling. A walks away from a Nursery and two Primary Schools, a young family would feel right at home in the area.
